

幼儿园是孩子们创造梦想和想象力的空间。幼儿园里的孩子们就像白纸一样有着无限的发展潜力。设计师对这座建筑没有定义刚性的形式和空间,整座幼儿园由白色立方体三维堆砌而成。


同时,不同的白立方空间都被赋予了不同的使用功能。随着时间的推移,这些立方体内都会充满各种各样的表现儿童想象力的作品,如绘画、涂鸦等

有些立方体被变成了室外空间,如庭院、露台、室外操场等,形成了类似攀爬架那样的交错组合空间。为了改变部分建筑造型,建筑之中增加了一些无屋顶立方体,这里可以让孩子们寻找开阔的风景、天空和想象力。由透明玻璃立方体组成的通道是孩子们展现想象力和感受大自然的地方。






这个矩阵一样的建筑并不只是一个被观察对象,相反,它更像一个个可以项目欣赏风景的画框。当孩子们穿行在立方体中的时候,那些像像素一样的小窗就像一幅幅描绘有夜晚星星和白天光线的小小画框。




项目图纸

模型

总平面图

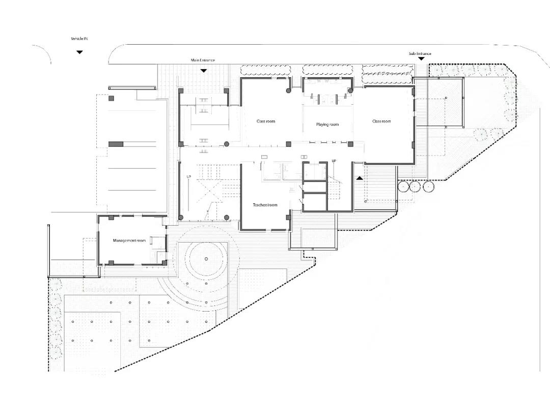
平面图

平面图

立面图

立面图

立面图

立面图

剖面图

剖面图

剖面图