
泰伦托幼儿园在意大利博尔扎诺自治省普斯特拉亚山谷的一个小山村建成并投入使用。波尔扎诺自治省地处边境地区,三种文化在这里交融,并通过建筑形式传达。建筑选址考虑地形,建筑师希望建筑能与环境融为一体。幼儿园拔地而起,一边是清晰的建筑轮廓,另一边消失在风景之中。

新的儿童日托中心位于众多公共设施的旁边。这个地方原来是一个迷你高尔夫球场,是泰伦托步行街的延伸。日托中心与周边的市政厅、体育场和邻近的小学形成一个有机整体。


日托中心东面地势向小学方向倾斜,是整个建筑的最低点。因此,人们只能看到建筑的一半。并在学校和日托中心之间形成一片共用空间。建筑的东面敞开式设计作为办公室使用。


日托中心入口与外面街道持平。在这一层里面,建筑被设计成三间“房子”造型,立面从直线之上略微偏移,形成一个交错的空间。为了应对周围环境,这三个单元的高度不同,并通过一条光线充足的玻璃走廊相连。



所有教室都朝南,多功能活动区面向北面街道和地势较低的草地。不同形状的房子有助于儿童辨别方向,而且孩子们在不同的房子里面都会有在家里的感觉。








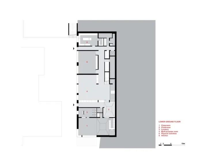
一楼设有两间教室、公共卫生间和衣帽间。办公区域有两个办公室和一个多功能区。




顶部透光的衣帽间在平时也可以作为一个额外的活动区域。建筑间通过像人行道一样的通道相连。楼层电梯连接两个不同高度的楼层。上层有一个可以用作运动或休息室的房间、多功能厅和厨房,以及第三间教室。虽然建筑只有西面、南面能从山坡上突出,但充足的阳光可以通过天窗照射到达衣帽间和教室。




我们要创造一个不同的空间结构,提供尽可能多的元素刺激儿童的自主活动、方向感、社会交往和审美潜能。建筑可在儿童活动舞台和安静区域进行灵活改变。一层教室有两个不同的高度,设置有走廊、艺术廊等。它提供了一系列不同的空间体验,形成了一种视觉之上的联系。



用松木做材料的艺术廊像鸟巢一样坐落在裸露的混凝土结构之上,两座桥连接着运动场。窗户带来的不同景色,把山景映入眼帘。地下一层的教室有近80平方米,是三间教室之中最大的一间,用简洁明了的线性方式设计。一半的空间以圆形的天窗向天空开放,光线可以轻轻地洒入空间。房间的另一半面向庭院两边,引入内部景观。


从每个教室,孩子们可以通过一条木质的走道进入庭院。中央多功能空间位于较低的山坡。当滑动门打开时,房间可与日托中心和学校间的空地相连。作为一个存储空间,隔断元素可以容纳各种活动所需的器材,也可以作为儿童行走的通道,提供坐的阁楼。员工室紧邻其中一间“房子”的入口。厨房位于较低楼层,可以从邻近的空地之上运送物资。

屋顶花园从下层进入,融合了建筑和景观。此外,自然景观也随着游乐场的出现而出现。毗邻的运动场、公园、草地和森林构成了极其丰富的景观。



建筑物的外墙是双层的,裸露的白色混凝土;木制的框架结构。入口空间也使用裸露的混凝土,屋顶则使用手工切割的松木瓦做的,低层的大窗户采用垂直的松木板覆盖,这样可以清楚地衬托出建筑结构

建筑图纸▽






