

在日本三重县津市大约10公里的一片住宅开发区北侧新建了一所幼儿园。


幼儿园四周充满绿色植物的自然环境。在田野、池塘、森林和舒适的风之中,你可以感受到季节的变化。


田野、池塘和树木对于居住在这里的居民来说都是那么的熟悉。一年四季的变化教会了孩子们很多东西。夏天小溪流入田野,秋天树叶变红,冬天雪花纷飞,春天鲜花盛开。在设计之中,我们强调儿童感受到的自然景观渗透到他们的身体之中,让他们在体验之中成长。



为了培养孩子们的想象力,我们在礼堂里面随机布置灯光,使其看起来像天空之中的星座。通过观察星座和相互学习,他们的探索、发现和好奇的能力得到了发展。


餐厅设计了两扇大窗户,让他们可以看到田野和池塘等景观。这样可以让孩子们用餐的时候可以感受一年四季的变化。后面的露台让他们可以在阳光和微风之中用餐,就像在户外野餐一样。


露台底部设计有集水装置,通过蒸发冷却吹入的风。这些设备在夏天使得孩子们在没有空调的情况之下也可以快乐地玩耍。


这个空间就像一个开放的休息室,父母亲们可以在这里得到放松和自由交流。这样做不仅可以减轻一些父母教育孩子的压力,也可以促进母亲间的交流沟通。



我们还在花园里面种了不同的果树。水果可以在厨房煮熟,在苗圃里面实现自给自足。通过这些活动,孩子们也发展了感性、好奇心和探索的能力。







如今,日常生活中不需要身体参与的活动越来越多,孩子在成长过程之中越来越缺乏各种生活体验,这也导致越来越多的年轻人与他人缺乏交流。在这个项目之中,我们创造了这样的一个环境,把孩子们与自然联系起来,让孩子们体验大自然的美丽,品尝大自然的恩赐,培养他们对美的热情。




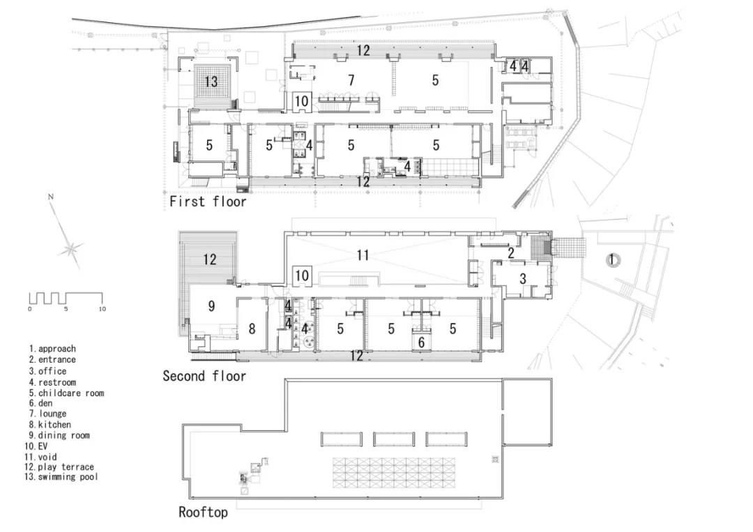
建筑图纸



