
韩国naver imae幼儿园兴建在盆唐东部,总共拥有300名学生。学校用一个10多米的斜坡横穿场地,建了一个和学院一样大小的花园。为了
达到规定要求的20%的绿地率,办事处计划采用新的幼儿园设计方案。





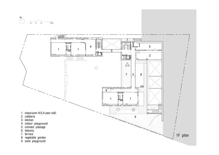
根据场地地形的自然渐变,建筑分为三层:最底层为停车场及后勤服务设施;之上两层为幼儿园功能用房。学校通过控制所有停车位和公
共汽车转弯,为孩子们提供了一个安全的生活环境。
规划过程中有效利用坡地,使地下空间获得与一层相同的自然光照。除顶层之外,所有楼层均与地面直接相连,这意味着几乎每个幼
儿园教室都有一个前院。三百名学生被分成三个不同的建筑单元,通过一个地下平台相互连接。







三栋楼由东向西排列成一排,将操场放在中央,让阳光可以进入其中。教室间使用模块化组件,形成休息室和游戏室。随着建筑高度随
坡上升,幼儿园自然与周边山景融为一体。素水泥砖和清水混凝土饰面一起成为四周自然环境的背景,与四周的绿色一致。












建筑图纸






