

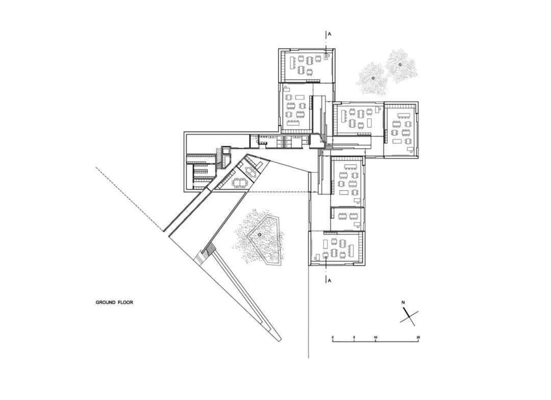
瑞士的新泊航沙幼儿园的设计构思是在倾斜的基地内建造一所大房子。建筑呈十字形,交叉的体量与周围环境形成了一种特殊的衔接关系。


四个不同方向的建筑体量交错衔接,每部分之间存在三分之一层高的室内高差,这使得建筑整体看起来更小巧,丝毫不觉得突兀。



六间教室两两一组,分别布置在三个不同体量中,楼梯则作为基础性结构设施布置在建筑中央位置。人们可以通过斜向的坡道进入建筑,同时这条坡道也是幼儿园的内部入口。



彼此垂直相交的建筑形体强调并遮蔽了入口区域。进入建筑内部,上层部分可以独立使用,平面由大型房间(餐厅)构成,这些大房间可以根据不同需要灵活分隔。


朝向不同方向的大型采光窗更加强调了建筑的自然品质,在建筑选址中,建筑师更多的考虑了视觉关系。



建筑在室内外均采用了混凝土材料,使之与地形和周边环境融为一体。
建筑图纸




