
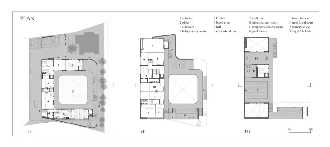
TESORO托儿所位于福岛周边的一个居住街区,是一个可容纳90人的托儿所,“TESORO” 在意大利语里是宝藏盒的意思。



建筑师希望能营造一个儿童自由玩耍的空间,因此将基地上的道路都进行了整合,在保持地面车辆通行的基本功能同时,设计者将育婴室放置在街道上方,从而为低层建筑中心的大型露天游乐区留出空间。使得儿童可以在巨大的开放空间自由穿梭。


在朝向东面山景的一侧设计了开口,以营造良好的景观视野。通过相互连接的循环路径,将内部和外部空间编织在一起,建筑物本身就像一个巨大的游乐设施,其中包含滑梯,攀岩墙和各种尺寸的楼梯。



起伏的混凝土墙被无数孔洞刺穿,环绕建筑物,增强了安全性和私密性。除了这种坚固的钢筋混凝土外,材料还包括内部和外部可见区域的木制护壁板,以及易于暴露于积雪的区域中易于维护的Galvalume屋顶和墙板。


建筑师还将外部的荒废区域改造成了屋顶花园的种植区,以及五人制足球的运动场地。这样一来,建筑师希望所创造的环境,可以让人们在至少5年,甚至10年的时间内使用这个空间,去感受时间的变化和馈赠。


通过这种方式,我们希望学校现在所代表的状态不再代表其巅峰状态,而是员工在未来五到十年内朝着自己梦想中的目标努力实现梦想和目标的起点。





分析图


